Кол-во комнат
Этажность здания
Этаж
Этаж
Показать расширенный поиск
Цена
Пл. общая (м²)
Показать расширенный поиск

Купить 2 - комнатная квартира (объект № 1-4136-75)

90 000$

Район: Киевский
Улица: КОСТАНДИ
Ориентир: КОРОЛЕВА АК
Топоним: Таирова
ЖК: Вернисаж
Этаж/этажность: 9 / 16
Комнат: 2
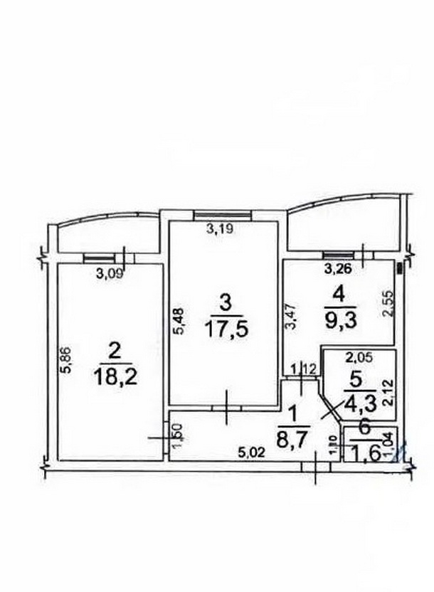
Площадь общая: 67.3 м²
Площадь жилая: 35.7 м²
Площадь кухни: 9.3 м²
Тип квартиры: Отдельная
Тип дома (проект): Спецпроект
Уровней: 1
Высота потолков: 3
Материал дома: Монолитно-каркасный
Материал стен: Монолитно-каркасный
Перекрытия: Ж/Б монолитные
Состояние: Евроремонт
Способ продажи: Продажа
Условия продажи: " чистый", без отягощений
Газификация: Электроплита
Отопление: Автономное
Водоснабжение: Бойлер
Размещение комнат: Раздельное
Пол: Ламинат
Санузел: Разд(ванна)
Дверь: Бронированная
Лестница: Бетонная
Вид из окна: Двор
Балкон: Лоджия(заст)
Материал окон: Металопластиковые
Добавлено на сайт 29.04.2026

Узнайте больше у нашего менеджера:

Проспект Князя Ярослава Мудрого (бывш.: Ак. Глушко), 15

048 796 12 50 093 037 00 69 president-1f@ukr.net
Наши соцсети

90 000$

Район: Киевский
Улица: КОСТАНДИ
Ориентир: КОРОЛЕВА АК
Топоним: Таирова
ЖК: Вернисаж
Этаж/этажность: 9 / 16
Комнат: 2
Площадь общая: 67.3 м²
Площадь жилая: 35.7 м²
Площадь кухни: 9.3 м²
Тип квартиры: Отдельная
Тип дома (проект): Спецпроект
Уровней: 1
Высота потолков: 3
Материал дома: Монолитно-каркасный
Материал стен: Монолитно-каркасный
Перекрытия: Ж/Б монолитные
Состояние: Евроремонт
Способ продажи: Продажа
Условия продажи: " чистый", без отягощений
Газификация: Электроплита
Отопление: Автономное
Водоснабжение: Бойлер
Размещение комнат: Раздельное
Пол: Ламинат
Санузел: Разд(ванна)
Дверь: Бронированная
Лестница: Бетонная
Вид из окна: Двор
Балкон: Лоджия(заст)
Материал окон: Металопластиковые
Добавлено на сайт 29.04.2026

Узнайте больше у нашего менеджера:

Проспект Князя Ярослава Мудрого (бывш.: Ак. Глушко), 15

048 796 12 50 093 037 00 69 president-1f@ukr.net
Наши соцсети
Центр Таирова. "Вернисаж" . Продажа 2-комнатной квартиры с отличной локацией. Современный жилой комплекс с охраняемой территорией. Уютная светлая квартира хорошей планировки, две раздельные спальни, лоджии. Новый современный ремонт, мебель, техника, своякладовкой в подвале, арендуемых паркоместо в подземном паркинге. Рядом все для удобства и комфорта: остановки транспорта, школы, садики, стадион, рынки, различные магазины и супермаркеты, вся сфера услуг. Очень востребованный раон для жизни или аренды. .

Обратная связь

Мы готовы ответить на все ваши вопросы

Напишите нам