Кол-во комнат
Этажность здания
Этаж
Этаж
Показать расширенный поиск
Цена
Пл. общая (м²)
Показать расширенный поиск

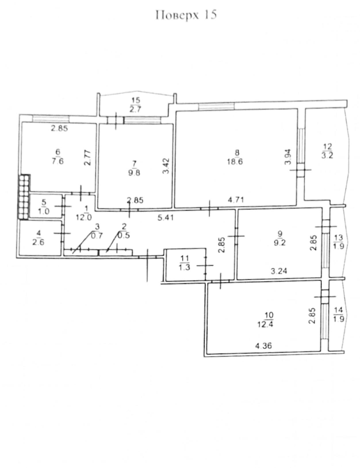
Купить 4 - комнатная квартира (объект № 9-3507-10)

56 000$

Район: Пересыпский
Улица: КНЯЗЯ ВЛАДИМИРА ВЕЛИКОГО ПР
Топоним: Котовского
Этаж/этажность: 15 / 16
Комнат: 4
Площадь общая: 84 м²
Площадь жилая: 50 м²
Площадь кухни: 8 м²
Тип квартиры: Отдельная
Тип дома (проект): 16-эт сотовый
Материал дома: Панельный
Состояние: После капремонта
Способ продажи: Продажа
Условия продажи: " чистый", без отягощений
Газификация: Электроплита
Отопление: ТЭЦ
Водоснабжение: Водопровод
Дверь: Бронированная
Балкон: Лоджия(заст)
Материал окон: Металопластиковые
Добавлено на сайт 17.04.2026

Узнайте больше у нашего менеджера:

ул. Владимира Великого (бывш.: Добровольского), 112

063 193 65 58 095 688 90 37 president_9f@ukr.net
Наши соцсети

56 000$

Район: Пересыпский
Улица: КНЯЗЯ ВЛАДИМИРА ВЕЛИКОГО ПР
Топоним: Котовского
Этаж/этажность: 15 / 16
Комнат: 4
Площадь общая: 84 м²
Площадь жилая: 50 м²
Площадь кухни: 8 м²
Тип квартиры: Отдельная
Тип дома (проект): 16-эт сотовый
Материал дома: Панельный
Состояние: После капремонта
Способ продажи: Продажа
Условия продажи: " чистый", без отягощений
Газификация: Электроплита
Отопление: ТЭЦ
Водоснабжение: Водопровод
Дверь: Бронированная
Балкон: Лоджия(заст)
Материал окон: Металопластиковые
Добавлено на сайт 17.04.2026

Узнайте больше у нашего менеджера:

ул. Владимира Великого (бывш.: Добровольского), 112

063 193 65 58 095 688 90 37 president_9f@ukr.net
Наши соцсети
Квартира в отличном состоянии. Ремонту лет 15, мебель и почти вся техника остаются. Заходи и живи. Потрясающий красивый вид на море и лиман. В подъезде чисто и ремонт, обновлены лифты. Идём под ГОСПРОГРАММЫ

Обратная связь

Мы готовы ответить на все ваши вопросы

Напишите нам