Кол-во комнат
Этажность здания
Этаж
Этаж
Показать расширенный поиск
Цена
Пл. общая (м²)
Показать расширенный поиск

Купить 2 - комнатная квартира (объект № 9-3504-12)

105 000$

Район: Пересыпский
Улица: МАРСЕЛЬСКАЯ
Ориентир: ПАЛИЯ СЕМЕНА
Топоним: Котовского
ЖК: Приморские сады
Корпус: 2
Этаж/этажность: 13 / 15
Комнат: 2
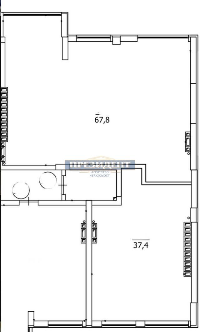
Площадь общая: 110 м²
Площадь жилая: 68 м²
Площадь кухни: 20 м²
Тип квартиры: Отдельная
Тип дома (проект): Спецпроект
Высота потолков: 2.8
Материал дома: Монолитно-каркасный
Состояние: После строителей
Способ продажи: Продажа
Газификация: Электроплита
Отопление: Автономное
Водоснабжение: Водопровод
Размещение комнат: Свободная планировка
Эксплуатация: Да
Вид из окна: Море
Балкон: Нет
Материал окон: Металопластиковые
Добавлено на сайт 17.04.2026

Узнайте больше у нашего менеджера:

ул. Владимира Великого (бывш.: Добровольского), 112

063 193 65 58 095 688 90 37 president_9f@ukr.net
Наши соцсети

105 000$

Район: Пересыпский
Улица: МАРСЕЛЬСКАЯ
Ориентир: ПАЛИЯ СЕМЕНА
Топоним: Котовского
ЖК: Приморские сады
Корпус: 2
Этаж/этажность: 13 / 15
Комнат: 2
Площадь общая: 110 м²
Площадь жилая: 68 м²
Площадь кухни: 20 м²
Тип квартиры: Отдельная
Тип дома (проект): Спецпроект
Высота потолков: 2.8
Материал дома: Монолитно-каркасный
Состояние: После строителей
Способ продажи: Продажа
Газификация: Электроплита
Отопление: Автономное
Водоснабжение: Водопровод
Размещение комнат: Свободная планировка
Эксплуатация: Да
Вид из окна: Море
Балкон: Нет
Материал окон: Металопластиковые
Добавлено на сайт 17.04.2026

Узнайте больше у нашего менеджера:

ул. Владимира Великого (бывш.: Добровольского), 112

063 193 65 58 095 688 90 37 president_9f@ukr.net
Наши соцсети
ЖК Приморские сады. В продаже появилась 2х сторонняя квартира 110 кв.м. Прямой вид на море, который уже не закроется в дальнейшем. Свободная планировка. Можно сделать двух или трехкомнатную квартиру. СПС более 3х лет. Квартира продается вместе с паркингом и кладовым помещением 7 кв.м. До моря 15 минут пешком.

Обратная связь

Мы готовы ответить на все ваши вопросы

Напишите нам