Кол-во комнат
Этажность здания
Этаж
Этаж
Показать расширенный поиск
Цена
Пл. общая (м²)
Показать расширенный поиск

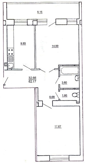
Купить 2 - комнатная квартира (объект № 12-253-26)

40 000$

Район: Хаджибейский
Улица: АФАНАСЬЕВА ГЕННАДИЯ
Ориентир: ВЫСОКИЙ ПЕР
Топоним: Молдованка
ЖК: Одесский двор
Этаж/этажность: 8 / 10
Комнат: 2
Площадь общая: 60.2 м²
Площадь жилая: 32.5 м²
Площадь кухни: 9.8 м²
Тип дома (проект): Высотный дом
Уровней: 1
Высота потолков: 2.75
Материал дома: Газобетон
Материал стен: Газобетон
Перекрытия: Ж/Б монолитные
Состояние: После строителей
Условия продажи: " чистый", без отягощений
Газификация: Природный
Отопление: Котельная (газ)
Водоснабжение: Водопровод
Размещение комнат: Раздельное
Эксплуатация: Да
Пол: Стяжка
Санузел: Совм(ванна)
Дверь: Бронированная
Лестница: Бетонная
Вид из окна: Двор + фасад
Балкон: Балкон
Расположение здания: Внутри квартала, двора
Расположение квартиры: Неугловая на две стороны
Подъезд: Другая парадная
Назначение: Жилищной и общей застройки
Добавлено на сайт 28.11.2025

Узнайте больше у нашего менеджера:

ул. Итальянская (бывш.: Пушкинская), 62

093 090 74 27 063 880 24 92 president12@te.net.ua
Наши соцсети

40 000$

Район: Хаджибейский
Улица: АФАНАСЬЕВА ГЕННАДИЯ
Ориентир: ВЫСОКИЙ ПЕР
Топоним: Молдованка
ЖК: Одесский двор
Этаж/этажность: 8 / 10
Комнат: 2
Площадь общая: 60.2 м²
Площадь жилая: 32.5 м²
Площадь кухни: 9.8 м²
Тип дома (проект): Высотный дом
Уровней: 1
Высота потолков: 2.75
Материал дома: Газобетон
Материал стен: Газобетон
Перекрытия: Ж/Б монолитные
Состояние: После строителей
Условия продажи: " чистый", без отягощений
Газификация: Природный
Отопление: Котельная (газ)
Водоснабжение: Водопровод
Размещение комнат: Раздельное
Эксплуатация: Да
Пол: Стяжка
Санузел: Совм(ванна)
Дверь: Бронированная
Лестница: Бетонная
Вид из окна: Двор + фасад
Балкон: Балкон
Расположение здания: Внутри квартала, двора
Расположение квартиры: Неугловая на две стороны
Подъезд: Другая парадная
Назначение: Жилищной и общей застройки
Добавлено на сайт 28.11.2025

Узнайте больше у нашего менеджера:

ул. Итальянская (бывш.: Пушкинская), 62

093 090 74 27 063 880 24 92 president12@te.net.ua
Наши соцсети
Продається 2-кімнатна квартира в новому зданому будинку ЖК "Одеський дворик" в тихому районі молдаванки. Великий закритий двір із дитячим майданчиком. Комплекс розташований недалеко від центру міста та ринку Привоз. Квартира двостороння з великим балконом під чистове оздоблення.

Обратная связь

Мы готовы ответить на все ваши вопросы

Напишите нам